売買物件PROPERTY
【相模原市緑区23】相模原市緑区物件の住宅ローンの不安、今すぐ解消!相模原市緑区で無料相談受付中2026.03.09一戸建て
セールスコメント
カウンターキッチン システムキッチン 床下収納 モニタ付インターホン ディンプルキー 防犯カメラ 複層ガラス 浄水器 3口以上コンロ 浴室暖房 浴室乾燥機 プロパンガス 人感センサー付照明 火災警報器(報知機) 温水洗浄便座 トイレ2ヶ所
取り扱いのない物件でも
ポータルサイトにて掲載ございます。
| 価格 | 2480万円 | 所在地 | 神奈川県相模原市緑区谷ケ原1丁目 |
|---|---|---|---|
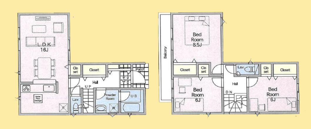
| 交通 | JR横浜線 / 橋本駅 【バス】17分 久保沢 停歩2分 | 間取り | 3LDK |
| 建物面積 | 89.1㎡ | 土地面積 | 113.26㎡ |
| 築年月 | 2026年3月 | 建物構造 | 木造 |
| 構造/階数 | 木造/2階 | ||
| 建ぺい率 | 60% | 容積率 | 160% |
| 駐車場 | 空家/即時 | 現況/引渡し | 空家/即時 |
| 土地権利 | 所有権 | ||
| 接道状況 | 東2.9m 公道 接面7.9m | 用途地域 | 1種住居 |
| 地目 | 宅地 | ||
| 建築確認番号 | 第KBI-SGM25-10-3093号 | 都市計画 | 市街化区域 |
| 取引態様 | 仲介 | ||






LINE
CONTACT