売買物件PROPERTY
【相模原市中央区20】相模原市中央区物件の住宅ローンの不安、今すぐ解消!相模原市中央区で無料相談受付中2026.01.08一戸建て
セールスコメント
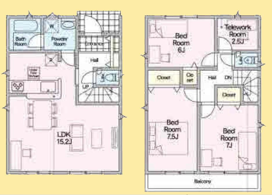
フラット35Sに対応 / 即引渡可 / スーパー 徒歩10分以内 / システムキッチン / 浴室乾燥機 / 全居室収納 / LDK15畳以上 / シャワー付洗面化粧台 / 対面式キッチン / EV車充電設備 / バリアフリー / トイレ2ヶ所 / 2階建 / 東南向き / 複層ガラス / 温水洗浄便座 / 床下収納 / 浴室に窓 / TVモニタ付インターホン / 全居室6畳以上 / 全居室複層ガラスか複層サッシ / 都市ガス / 平坦地 / 浄水器
取り扱いのない物件でも
ポータルサイトにて掲載ございます。
| 価格 | 3780万円 | 所在地 | 神奈川県相模原市中央区共和3丁目 |
|---|---|---|---|
| 交通 | JR横浜線「淵野辺」歩16分 JR相模線「上溝」歩50分 小田急線「町田」歩60分 | 間取り | 3LDK |
| 建物面積 | 92.74㎡ | 土地面積 | 107.97㎡ |
| 築年月 | 2025年10月 | 建物構造 | 木造 |
| 構造/階数 | 木造/2階 | ||
| 建ぺい率 | 60% | 容積率 | 180% |
| 駐車場 | 即引渡可 | 現況/引渡し | 即引渡可 |
| 土地権利 | 所有権 | ||
| 用途地域 | 2種中高 | ||
| 取引態様 | 仲介 | ||






LINE
CONTACT