売買物件PROPERTY
【八王子17】八王子市物件の住宅ローンの不安、今すぐ解消!八王子市で無料相談受付中2025.12.12一戸建て
セールスコメント
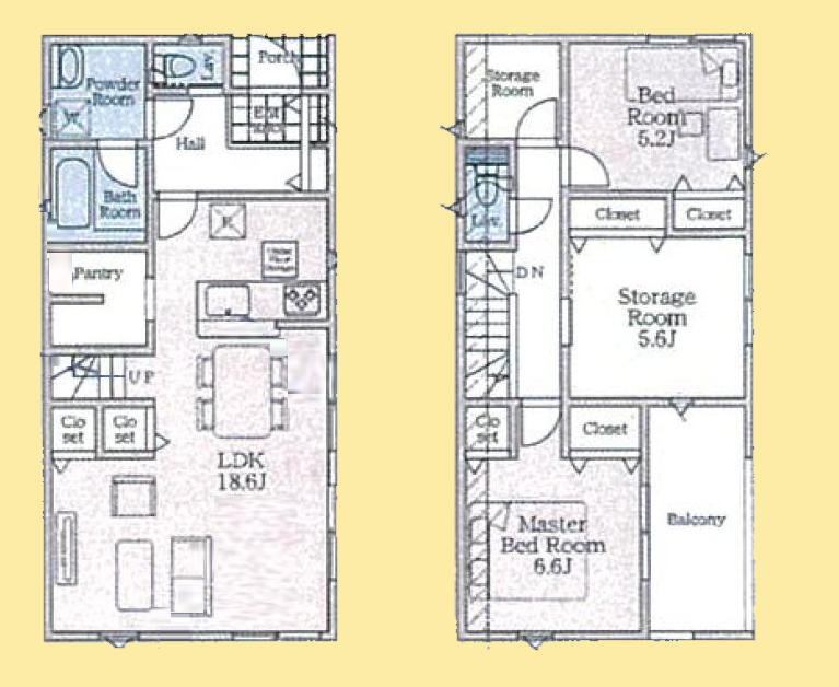
都市ガス /公営水道 /公共下水/ ユニットバス /水洗トイレ/ 陽当り良好 /駐車場2台分/ 下水道 /上水道 /電気/ 太陽光発電システム/ 浴室に窓 /浴暖房/ 浴室乾燥機/ バス1坪以上 /追焚き給湯/ 対面式キッチン/ システムキッチン/ オープンキッチン /シャワー付き洗面化粧台/ 独立洗面台/ 室内洗濯機置場/ 全居室収納スペース/ 床下収納/ バルコニー/ 全居室2面採光 /人感センサーライト/ 全居室フローリング/ 納戸/ パントリー/ 防犯カメラ/ ダブルロック/ドア /ディンプルキー/ LDK15帖以上/ 火災警報器(報知機)/ 外壁サイディング/ 住宅性能評価/ 設計住宅性能評価取得
取り扱いのない物件でも
ポータルサイトにて掲載ございます。
| 価格 | 2980万円 | 所在地 | 東京都八王子市上壱分方町 |
|---|---|---|---|
| 交通 | JR中央本線西八王子駅バス20分 「二分方入口」バス停 下車徒歩5分 JR中央本線八王子駅バス28分 「二分方入口」バス停 下車徒歩5分 京王線京王八王子駅バス33分 「二分方入口」バス停 下車徒歩5分 | 間取り | 2LDK |
| 建物面積 | 100.84㎡ | 土地面積 | 170.52㎡ |
| 築年月 | 100.84㎡ | 建物構造 | 木造 |
| 構造/階数 | 木造/2階 | ||
| 建ぺい率 | 40% | 容積率 | 80% |
| 土地権利 | 所有権 | ||
| 接道状況 | 北西4.00m 公道 | 用途地域 | 第1種低層住居専用地域 |
| 地目 | 畑 | ||
| 都市計画 | 市街化 | ||
| 取引態様 | 仲介 | ||






LINE
CONTACT