売買物件PROPERTY
【町田13】町田市物件の住宅ローンの不安、今すぐ解消!町田市で無料相談受付中2025.12.11一戸建て
セールスコメント
システムキッチン/カウンターキッチン/シャンプードレッサー/シャワートイレ/浴室乾燥機/コンロ三口/床下収納/TVドアホン/都市ガス
取り扱いのない物件でも
ポータルサイトにて掲載ございます。
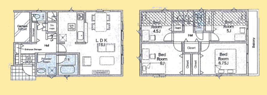
| 価格 | 3480万円 | 所在地 | 東京都町田市鶴川4丁目 |
|---|---|---|---|
| 交通 | 小田急小田原線 鶴川 バス13分 和光学園 停歩2分 小田急多摩線 黒川 徒歩34分 | 間取り | 4LDK |
| 建物面積 | 91.93㎡ | 土地面積 | 104.74㎡ |
| 築年月 | 2025年8月築 | 建物構造 | 木造 |
| 構造/階数 | 木造/2階 | ||
| 建ぺい率 | 50% | 容積率 | 150% |
| 駐車場 | 空家/即時 | 現況/引渡し | 空家/即時 |
| 土地権利 | 所有権 | ||
| 接道状況 | 北西 6.6m 公道 道路幅: 16.7m | 用途地域 | 第二種中高層住居専用地域 |
| 地目 | 宅地 | ||
| 建築確認番号 | 第R07SHC105639号 | ||
| 取引態様 | 仲介 | ||






LINE
CONTACT