売買物件PROPERTY
【座間26】座間市物件の住宅ローンの不安、今すぐ解消!座間市で無料相談受付中2025.12.08一戸建て
セールスコメント
設計住宅性能評価書 / 建設住宅性能評価書(新築時) / 省エネルギー対策 / フラット35Sに対応 / システムキッチン / 浴室乾燥機 / 全居室収納 / LDK15畳以上 / シャワー付洗面化粧台 / 対面式キッチン / トイレ2ヶ所 / 2階建 / 複層ガラス / 温水洗浄便座 / 床下収納 / TVモニタ付インターホン / 全居室フローリング / 全居室複層ガラスか複層サッシ / 都市ガス / 全室2面採光 / 小学校 徒歩10分以内 / 納戸
取り扱いのない物件でも
ポータルサイトにて掲載ございます。
| 価格 | 2980万円 | 所在地 | 神奈川県座間市南栗原6丁目 |
|---|---|---|---|
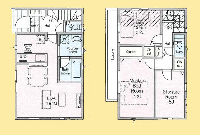
| 交通 | 相鉄本線「かしわ台」歩15分 小田急小田原線「座間」バス6分立野台歩13分 相鉄本線「さがみ野」歩19分 | 間取り | 2LDK |
| 建物面積 | 78.56㎡ | 土地面積 | 82.23㎡ |
| 築年月 | 2026年2月予定 | 建物構造 | 木造 |
| 構造/階数 | 木造/2階 | ||
| 建ぺい率 | 50% | 容積率 | 80% |
| 駐車場 | 2026年2月下旬予定 | 現況/引渡し | 2026年2月下旬予定 |
| 土地権利 | 所有権 | ||
| 用途地域 | 1種低層 | ||
| 地目 | 宅地 | ||
| 建築確認番号 | 第R07SHC113069号 | ||
| 取引態様 | 仲介 | ||






LINE
CONTACT