売買物件PROPERTY
【相模原市南区18】相模原市南区物件の住宅ローンの不安、今すぐ解消!相模原市南区で無料相談受付中2025.12.04一戸建て
セールスコメント
設計住宅性能評価書 / フラット35・S適合証明書 / 省エネルギー対策 / フラット35Sに対応 / 地盤調査済 / 即引渡可 / 省エネ給湯器 / 市街地が近い / 南向き / システムキッチン / 浴室乾燥機 / 陽当り良好 / 全居室収納 / 閑静な住宅地 / 整形地 / シャワー付洗面化粧台 / 対面式キッチン / ワイドバルコニー / 3面採光 / バリアフリー / トイレ2ヶ所 / 浴室1坪以上 / 2階建 / 南面バルコニー / 複層ガラス / オートバス / 温水洗浄便座 / 床下収納 / 浴室に窓 / TVモニタ付インターホン / 節水型トイレ / 緑豊かな住宅地 / 都市近郊 / 通風良好 / 全居室フローリング / ウォークインクローゼット / 全居室複層ガラスか複層サッシ / 全室2面採光 / ルーフバルコニー / 周辺交通量少なめ / 浄水器 / スマートキー
取り扱いのない物件でも
ポータルサイトにて掲載ございます。
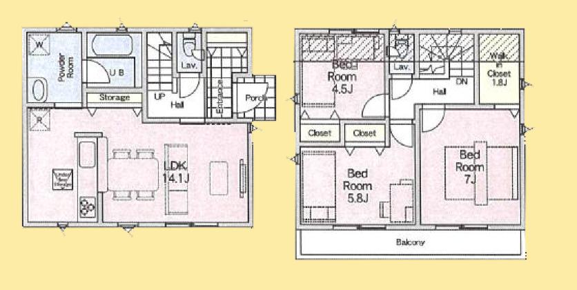
| 価格 | 2580万円 | 所在地 | 神奈川県相模原市南区新戸 |
|---|---|---|---|
| 交通 | JR相模線「相武台下」歩17分 JR相模線「下溝」歩28分 小田急小田原線「相武台前」歩31分 | 間取り | 3LDK |
| 建物面積 | 78.36㎡ | 土地面積 | 101.52㎡ |
| 築年月 | 2025年5月 | 建物構造 | 木造 |
| 構造/階数 | 木造/2階 | ||
| 建ぺい率 | 50% | 容積率 | 80% |
| 駐車場 | 即引渡可 | 現況/引渡し | 即引渡可 |
| 土地権利 | 所有権 | ||
| 用途地域 | 1種低層 | ||
| 地目 | 宅地 | ||
| 建築確認番号 | 第KBI-SGM24-10-5824号他 | ||
| 取引態様 | 仲介 | ||






LINE
CONTACT