売買物件PROPERTY
【町田19】町田市物件の住宅ローンの不安、今すぐ解消!町田市で無料相談受付中2025.11.25一戸建て
セールスコメント
省エネルギー対策 / 駐車2台可 / 即引渡可 / LDK18畳以上 / システムキッチン / 全居室収納 / 閑静な住宅地 / シャワー付洗面化粧台 / 対面式キッチン / 3面採光 / トイレ2ヶ所 / 浴室1坪以上 / 2階建 / 複層ガラス / 温水洗浄便座 / TV付浴室 / 床下収納 / 浴室に窓 / TVモニタ付インターホン / 全居室フローリング / パントリー(食器・食品の収納庫) / ウォークインクローゼット / 全居室6畳以上 / 小学校 徒歩10分以内 / 屋根裏収納 / 食器洗乾燥機 / 浄水器 / スマートキー
取り扱いのない物件でも
ポータルサイトにて掲載ございます。
| 価格 | 3480万円 | 所在地 | 東京都町田市野津田町 |
|---|---|---|---|
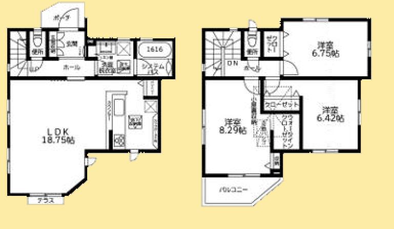
| 交通 | 小田急線「町田」バス9分川島入口歩6分 小田急線「鶴川」歩33分 小田急多摩線「栗平」車6km | 間取り | 3LDK |
| 建物面積 | 95.58㎡ | 土地面積 | 130.38㎡ |
| 築年月 | 2025年5月 | 建物構造 | 木造 |
| 構造/階数 | 木造/2階 | ||
| 建ぺい率 | 40% | 容積率 | 80% |
| 駐車場 | 即引渡可 | 現況/引渡し | 即引渡可 |
| 土地権利 | 所有権 | ||
| 用途地域 | 1種低層 | ||
| 地目 | 宅地 | ||
| 取引態様 | 仲介 | ||






LINE
CONTACT