売買物件PROPERTY
【座間27】座間市物件の住宅ローンの不安、今すぐ解消!座間市で無料相談受付中2025.11.20一戸建て
セールスコメント
BELS/省エネ基準適合認定書あり / フラット35Sに対応 / 地盤調査済 / 駐車2台可 / 即引渡可 / LDK20畳以上 / 省エネ給湯器 / スーパー 徒歩10分以内 / システムキッチン / 浴室乾燥機 / 陽当り良好 / 全居室収納 / 閑静な住宅地 / 前道6m以上 / 角地 / シャワー付洗面化粧台 / 対面式キッチン / トイレ2ヶ所 / 浴室1坪以上 / 2階建 / 2面以上バルコニー / 南面バルコニー / 温水洗浄便座 / 床下収納 / 浴室に窓 / TVモニタ付インターホン / 都市近郊 / 通風良好 / 全居室フローリング / 都市ガス / シューズインクローク / 全室2面採光 / 小学校 徒歩10分以内 / 食器洗乾燥機 / 整備された歩道 / 浄水器
取り扱いのない物件でも
ポータルサイトにて掲載ございます。
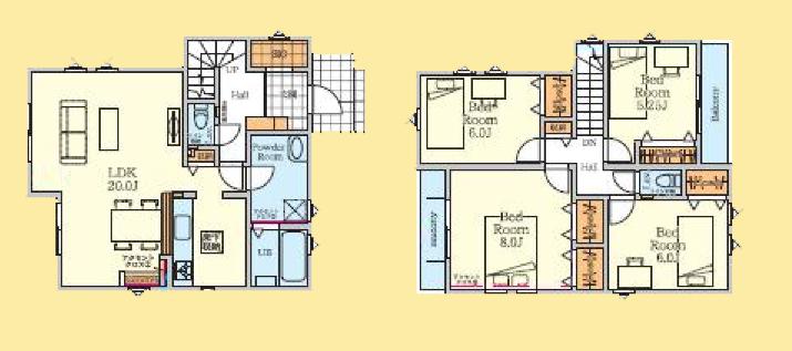
| 価格 | 4899万円 | 所在地 | 神奈川県座間市南栗原6丁目 |
|---|---|---|---|
| 交通 | 相鉄本線「かしわ台」歩14分~15分 相鉄本線「さがみ野」歩21分~22分 小田急小田原線「座間」歩29分~30分 | 間取り | 4LDK |
| 建物面積 | 108.47㎡ | 土地面積 | 141.25㎡ |
| 築年月 | 2025年10月 | 建物構造 | 木造 |
| 構造/階数 | 木造/2階 | ||
| 建ぺい率 | 60% | 容積率 | 100% |
| 駐車場 | 即引渡可 | 現況/引渡し | 即引渡可 |
| 土地権利 | 所有権 | ||
| 用途地域 | 1種低層 | ||
| 地目 | 宅地 | ||
| 建築確認番号 | 第25UDI1W建02831号他 | ||
| 取引態様 | 仲介 | ||






LINE
CONTACT