売買物件PROPERTY
【八王子11】八王子市物件の住宅ローンの不安、今すぐ解消!八王子市で無料相談受付中2025.11.11一戸建て
セールスコメント
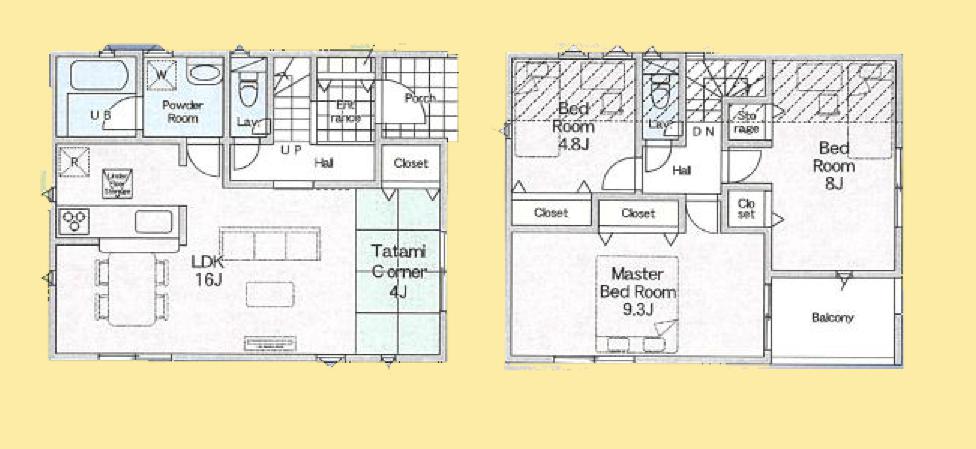
即引渡可 / システムキッチン / 浴室乾燥機 / 全居室収納 / LDK15畳以上 / シャワー付洗面化粧台 / 対面式キッチン / トイレ2ヶ所 / 2階建 / 複層ガラス / 温水洗浄便座 / 床下収納 / 浴室に窓 / TVモニタ付インターホン / 全居室複層ガラスか複層サッシ / 全室2面採光 / ルーフバルコニー / 浄水器
取り扱いのない物件でも
ポータルサイトにて掲載ございます。
| 価格 | 2280万円 | 所在地 | 東京都八王子市川口町 |
|---|---|---|---|
| 交通 | JR中央線「八王子」バス26分榎木歩9分 JR五日市線「武蔵五日市」バス20分榎木歩9分 JR横浜線「八王子」車8km | 間取り | 3LDK |
| 建物面積 | 94.77㎡ | 土地面積 | 132.42㎡ |
| 築年月 | 2025年9月 | 建物構造 | 木造 |
| 構造/階数 | 木造/2階 | ||
| 建ぺい率 | 40% | 容積率 | 80% |
| 駐車場 | 即引渡可 | 現況/引渡し | 即引渡可 |
| 土地権利 | 所有権 | ||
| 用途地域 | 1種低層 | ||
| 地目 | 宅地 | ||
| 建築確認番号 | 第R07SHC108757号 | ||
| 取引態様 | 仲介 | ||






LINE
CONTACT