売買物件PROPERTY
【相模原市中央区23】相模原市中央区物件の住宅ローンの不安、今すぐ解消!相模原市中央区で無料相談受付中2025.11.10一戸建て
セールスコメント
設計住宅性能評価書 / 建設住宅性能評価書(新築時) / BELS/省エネ基準適合認定書あり / フラット35・S適合証明書 / 省エネルギー対策 / 地盤調査済 / 年内引渡可 / 駐車2台可 / 2沿線以上利用可 / LDK18畳以上 / 省エネ給湯器 / スーパー 徒歩10分以内 / システムキッチン / 浴室乾燥機 / 陽当り良好 / 閑静な住宅地 / 和室 / 始発駅 / 整形地 / シャワー付洗面化粧台 / 対面式キッチン / バリアフリー / トイレ2ヶ所 / 浴室1坪以上 / 2階建 / 南面バルコニー / 複層ガラス / オートバス / 温水洗浄便座 / 床下収納 / 浴室に窓 / TVモニタ付インターホン / 緑豊かな住宅地 / 通風良好 / 全居室複層ガラスか複層サッシ / 小学校 徒歩10分以内 / 平坦地 / 周辺交通量少なめ / 浄水器
取り扱いのない物件でも
ポータルサイトにて掲載ございます。
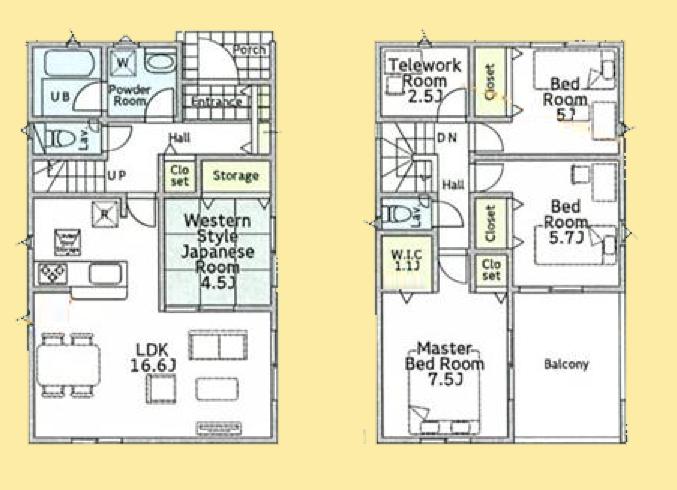
| 価格 | 2980万円 | 所在地 | 神奈川県相模原市中央区田名 |
|---|---|---|---|
| 交通 | JR横浜線「橋本」バス28分上四ツ谷歩4分 JR相模線「橋本」バス28分上四ツ谷歩4分 京王相模原線「橋本」バス28分上四ツ谷歩4分 | 間取り | 4LDK |
| 建物面積 | 98.81㎡ | 土地面積 | 106.83㎡ |
| 築年月 | 2025年12月予定 | 建物構造 | 木造 |
| 構造/階数 | 木造/2階 | ||
| 駐車場 | 相談 | 現況/引渡し | 相談 |
| 土地権利 | 所有権 | ||
| 用途地域 | 1種住居 | ||
| 地目 | 宅地 | ||
| 建築確認番号 | 第KBI-SGM25-10-3399号他 | ||
| 取引態様 | 仲介 | ||






LINE
CONTACT