売買物件PROPERTY
【相模原市中央区19】相模原市中央区物件の住宅ローンの不安、今すぐ解消!相模原市中央区で無料相談受付中2025.11.10一戸建て
セールスコメント
年内引渡可 / システムキッチン / 浴室乾燥機 / 陽当り良好 / 全居室収納 / 駅まで平坦 / 閑静な住宅地 / LDK15畳以上 / 角地 / シャワー付洗面化粧台 / 対面式キッチン / バリアフリー / トイレ2ヶ所 / 浴室1坪以上 / 2階建 / 東南向き / 温水洗浄便座 / 床下収納 / 浴室に窓 / TVモニタ付インターホン / 緑豊かな住宅地 / 通風良好 / 全居室フローリング / ウォークインクローゼット / リビング階段 / 都市ガス / 平坦地 / 周辺交通量少なめ / 浄水器
取り扱いのない物件でも
ポータルサイトにて掲載ございます。
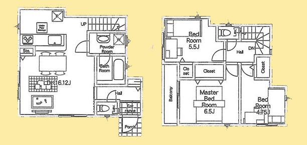
| 価格 | 2280万円 | 所在地 | 神奈川県相模原市中央区上溝 |
|---|---|---|---|
| 交通 | JR相模線「上溝」歩25分 京王相模原線「橋本」バス18分作の口歩4分 JR横浜線「相模原」バス21分石橋歩14分 | 間取り | 3LDK |
| 建物面積 | 76.94㎡ | 土地面積 | 95.48㎡ |
| 築年月 | 2025年9月 | 建物構造 | 木造 |
| 構造/階数 | 木造/2階 | ||
| 建ぺい率 | 70%・60% | 容積率 | 200% |
| 駐車場 | 2025年9月末 | 現況/引渡し | 2025年9月末 |
| 土地権利 | 所有権 | ||
| 用途地域 | 準工業 | ||
| 建築確認番号 | 第R07SHC108129号他 | ||
| 取引態様 | 仲介 | ||






LINE
CONTACT