売買物件PROPERTY
【町田13】町田市物件の住宅ローンの不安、今すぐ解消!町田市で無料相談受付中2025.10.17一戸建て
セールスコメント
フラット35Sに対応 / 太陽光発電システム / 駐車2台可 / システムキッチン / 全居室収納 / 閑静な住宅地 / LDK15畳以上 / ワイドバルコニー / トイレ2ヶ所 / 浴室1坪以上 / 2階建 / オートバス / 温水洗浄便座 / 床下収納 / TVモニタ付インターホン / ウォークインクローゼット / ルーフバルコニー / オール電化
取り扱いのない物件でも
ポータルサイトにて掲載ございます。
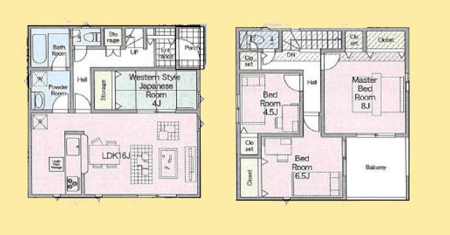
| 価格 | 3780万円 | 所在地 | 東京都町田市常盤町 |
|---|---|---|---|
| 交通 | JR横浜線「矢部」歩33分 JR横浜線「相模原」歩36分 JR横浜線「淵野辺」歩37分 | 間取り | 4LDK |
| 建物面積 | 94.77㎡ | 土地面積 | 161.89㎡ |
| 築年月 | 2025年12月予定 | 建物構造 | 木造 |
| 構造/階数 | 木造/2階 | ||
| 建ぺい率 | 40% | 容積率 | 80% |
| 駐車場 | 相談 | 現況/引渡し | 相談 |
| 土地権利 | 所有権 | ||
| 用途地域 | 1種低層 | ||






LINE
CONTACT