売買物件PROPERTY
【相模原市緑区25】相模原市緑区物件の住宅ローンの不安、今すぐ解消!相模原市緑区で無料相談受付中2025.09.25一戸建て




セールスコメント
設計住宅性能評価書 / 建設住宅性能評価書(新築時) / BELS/省エネ基準適合認定書あり / フラット35・S適合証明書 / 空き家バンク登録物件 / 省エネルギー対策 / フラット35Sに対応 / 地盤調査済 / 年内引渡可 / 駐車3台以上可 / 2沿線以上利用可 / LDK20畳以上 / 土地50坪以上 / 省エネ給湯器 / ゴルフ場が近い / スーパー 徒歩10分以内 / システムキッチン / 浴室乾燥機 / 全居室収納 / 駅まで平坦 / 閑静な住宅地 / 和室 / 始発駅 / シャワー付洗面化粧台 / 対面式キッチン / ワイドバルコニー / トイレ2ヶ所 / 浴室1坪以上 / 2階建 / 複層ガラス / オートバス / 温水洗浄便座 / 浴室に窓 / TVモニタ付インターホン / 緑豊かな住宅地 / ウォークインクローゼット / 全居室複層ガラスか複層サッシ / 都市ガス / ルーフバルコニー / 平坦地 / 周辺交通量少なめ / 浄水器
取り扱いのない物件でも
ポータルサイトにて掲載ございます。
価格 | 3280万円 | 所在地 | 神奈川県相模原市緑区町屋4丁目 |
---|---|---|---|
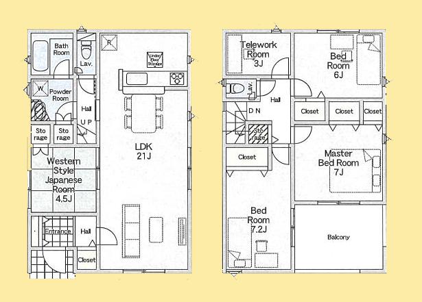
交通 | 京王相模原線「橋本」バス14分原宿歩7分 JR横浜線「相原」バス8分境橋歩12分 JR横浜線「橋本」バス14分原宿歩7分 | 間取り | 4LDK |
建物面積 | 107.72㎡ | 土地面積 | 173.49㎡ |
築年月 | 2025年7月 | 建物構造 | 木造 |
構造/階数 | 木造/2階 | ||
建ぺい率 | 60% | 容積率 | 200% |
駐車場 | 相談 | 現況/引渡し | 相談 |
土地権利 | 所有権 | ||
用途地域 | 2種住居 | ||
建築確認番号 | 第KBI-SGM25-10-2244号他 | ||
取引態様 | 仲介 | ||