売買物件PROPERTY
【大和10】大和市物件の住宅ローンの不安、今すぐ解消!大和市で無料相談受付中2025.09.22一戸建て
セールスコメント
設計住宅性能評価書 / 建設住宅性能評価書(新築時) / フラット35Sに対応 / 地盤調査済 / 即引渡可 / LDK18畳以上 / 省エネ給湯器 / スーパー 徒歩10分以内 / 南向き / システムキッチン / 浴室乾燥機 / 陽当り良好 / 全居室収納 / 駅まで平坦 / 閑静な住宅地 / 整形地 / 庭 / シャワー付洗面化粧台 / 対面式キッチン / ワイドバルコニー / バリアフリー / トイレ2ヶ所 / 浴室1坪以上 / 2階建 / 南面バルコニー / 複層ガラス / オートバス / 温水洗浄便座 / 床下収納 / 浴室に窓 / TVモニタ付インターホン / 節水型トイレ / 都市近郊 / 通風良好 / 全居室フローリング / パントリー(食器・食品の収納庫) / ウォークインクローゼット / 全居室複層ガラスか複層サッシ / 都市ガス / シューズインクローク / 全室2面採光 / 平坦地 / 整備された歩道 / 浄水器 / 高機能トイレ
取り扱いのない物件でも
ポータルサイトにて掲載ございます。
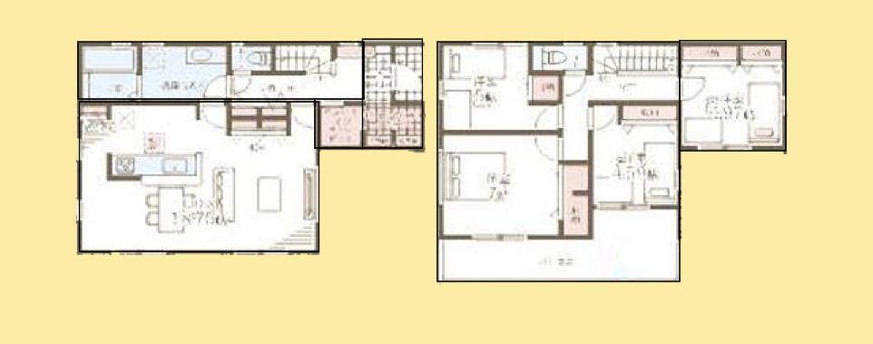
| 価格 | 4880万円 | 所在地 | 神奈川県大和市西鶴間7丁目 |
|---|---|---|---|
| 交通 | 小田急江ノ島線「鶴間」歩21分~22分 小田急江ノ島線「南林間」バス16分十一条歩9分~10分 相鉄本線「相模大塚」歩31分~32分 | 間取り | 4LDK |
| 建物面積 | 105.58㎡ | 土地面積 | 138.38㎡ |
| 築年月 | 2025年9月 | 建物構造 | 木造 |
| 構造/階数 | 木造/2階 | ||
| 建ぺい率 | 50% | 容積率 | 80% |
| 駐車場 | 即引渡可 | 現況/引渡し | 即引渡可 |
| 私道負担面積 | 所有権 | ||
| 用途地域 | 1種低層 | ||
| 地目 | 宅地 | ||
| 建築確認番号 | 第R07SHC109020号他 | ||
| 取引態様 | 仲介 | ||






LINE
CONTACT