売買物件PROPERTY
【相模原市緑区8】相模原市緑区物件の住宅ローンの不安、今すぐ解消!相模原市緑区で無料相談受付中2025.09.05一戸建て
セールスコメント
システムキッチン/カウンターキッチン/シャンプードレッサー/シャワートイレ/浴室乾燥機/Wクローゼット/床下収納/TVドアホン/カウンターキッチン/カースペース2台以上
取り扱いのない物件でも
ポータルサイトにて掲載ございます。
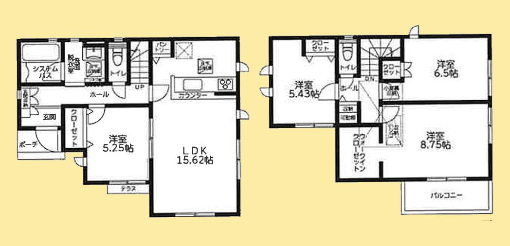
| 価格 | 3230万円 | 所在地 | 神奈川県相模原市緑区谷ケ原2丁目 |
|---|---|---|---|
| 交通 | JR横浜線 橋本 谷ヶ原 バス16分 停歩3分 京王相模原線 橋本 谷ヶ原 バス16分 停歩3分 | 間取り | 4LDK |
| 建物面積 | 101.02㎡ | 土地面積 | 117.54㎡ |
| 築年月 | 2025年3月築 | 建物構造 | 木造 |
| 構造/階数 | 木造/2階 | ||
| 建ぺい率 | 60% | 容積率 | 160% |
| 駐車場 | 空家/即時 | 現況/引渡し | 空家/即時 |
| 土地権利 | 所有権 | ||
| 接道状況 | 接道: 北 公道 道路幅: 4m 接道: 西 公道 道路幅: 4m | 用途地域 | 第一種中高層住居専用地域 |
| 地目 | 宅地 | ||
| 建築確認番号 | 第KBI-SGM24-10-2668号 | 都市計画 | 市街化区域 |
| 取引態様 | 仲介 | ||






LINE
CONTACT